物件一覧
シティゲートタワー千里中央 7680万円
シティゲートタワー千里中央 7680万円
リフォーム済につき、いつでも内覧可能となっています。お気軽にお問い合わせください。
所在地:箕面市船場東3-2-35
交通:北大阪急行箕面船場阪大前駅より徒歩2分
販売価格:7680万円
管理費:12280円 修繕積立金:9250円
構造:鉄筋コンクリート造26階建
築年数:2005年1月築
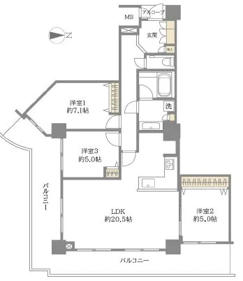
専有面積:84.08㎡ バルコニー面積:29.81㎡
主採光:東向き 間取り:3LDK
管理形態:全部委託(伊藤忠アーバンコミュニティ株式会社)
管理人:日勤
現況:空家 引渡時期:即時



















